El submarino de Sanjurjo
El submarino de Sanjurjo
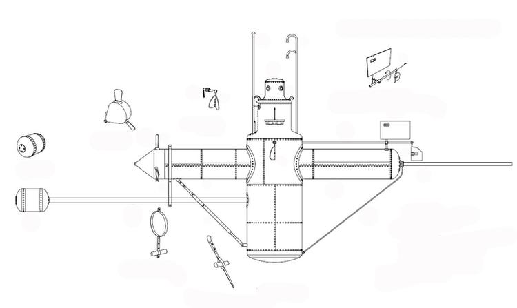
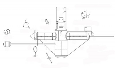
Salut je amis ont fait du travail sur ce projet ont encore quelques problèmes avec les tubes horizontaux attachés à cause de la forme à couper dans les tuyaux d'indices?
Dernière modification par gantu le 25 mars 2010 10:28, modifié 1 fois.
Salute Gantu